SANTINO
Wohneinheiten
Größe
Zimmer
Grundstücksfläche
Wohnfläche
Zimmer
Neubau in Morzg nahe Schloss Hellbrunn
Im Salzburger Stadtteil Morzg, unweit vom Schloss Hellbrunn, entsteht SANTINO: 26 exklusive Eigentumswohnungen von der grünen Gartenwohnung bis zur Dachterrassenwohnung. Zwei elegante Baukörper, bodentiefe Fenster, großzügige Freiflächen und ein beeindruckender Blick Richtung Gaisberg schaffen ein Wohngefühl, das seinesgleichen sucht.
Highlights dieses Projekts
- 26 Eigentumswohnungen in Salzburg-Morzg nahe Schloss Hellbrunn
- Zwei moderne Baukörper mit eleganter Architektur und Glaselementen
- Großzügige Balkone, Terrassen und Dachgärten (je nach Einheit)
- Raumhöhen ca. 2,60 m, im Dachgeschoss bis zu ca. 4 m
- Begrünte Dächer, parkähnliche Freianlagen bis zum Hellbrunner Bach
- Nachhaltiges Energiekonzept: Wärmepumpe & Photovoltaik (mit Speicher)
- Fußbodenheizung/-kühlung, E-Mobilität Anschlussmöglichkeit
- Premium-/Premium-Plus-Ausstattung (u.a. Parkett, Villeroy & Boch, Gira)
Kategorie

Grundstücksfläche

Projektadresse


Baustart

Baustart

Fertigstellung

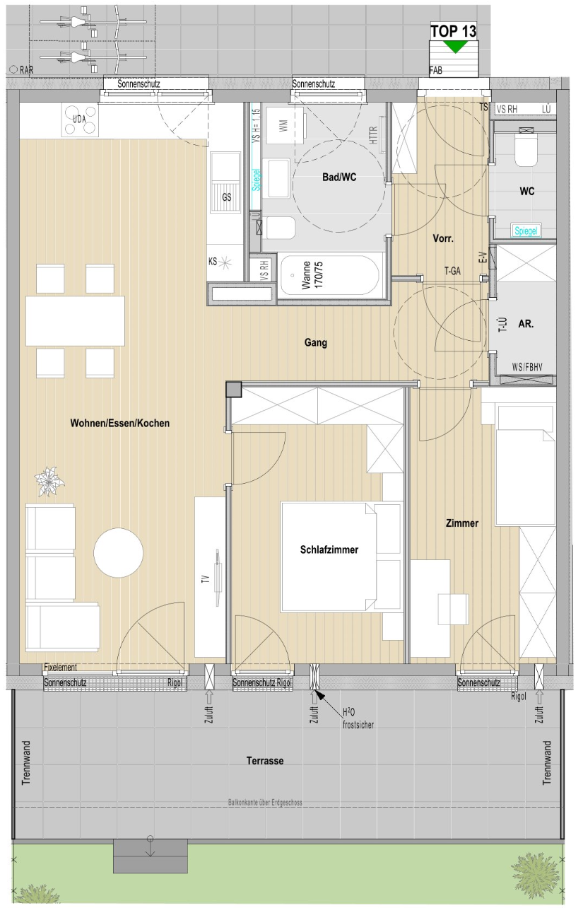
Einheiten in diesem Projekt
Noch ? von ? Einheiten verfügbar
Wie viel Wohnfläche hätten Sie gerne?
Was soll es denn sein?


Der Stadtteil Morzg - Eine der exklusivsten Wohngegenden Salzburgs
Umgeben von weitläufigen Wiesen und Wäldern und angrenzend an die imposante Hellbrunner Allee zählt die Landschaft zu den schönsten und idyllischsten Juwelen, die die Stadt zu bieten hat.
Reiter lieben die Allee für ihre Ausritte, ebenso nutzen Läufer, Spaziergänger und Erholungssuchende die Weitläufigkeit für ihre Aktivitäten.
Santino – Hellbrunner Lebensart
Lage & Infrastruktur
Exklusive Wohnlage in Morzg mit Nähe zur Hellbrunner Allee und schneller Anbindung an die Salzburger Altstadt.



Bushaltestelle
Arzt
Kindergarten
Schule
300 m
300 m
350 m
350 m
500 m
500 m
600 m
600 m
Weitere aktuelle Projekte




Fordern Sie
jetzt Ihr Exposé an
Im Exposé erhalten Sie alle wichtigen Informationen zu Ihrer neuen Wohnmöglichkeit. Auf Wunsch vereinbaren wir gerne ein persönliches Beratungsgespräch, um Ihre individuellen Fragen zu klären.

































